Urban plaza featuring a glass-clad skyscraper with stepped greenery terraces; pedestrians on a wide street beside modern office towers.
The Pulse
Germany
  • High-Rise
  • Mixed Use
  • Office
  • Residential
  • Competition

The project is intended as an extension of the existing cultural space of the Gallus complex. Along a vertical joint that runs from the base to the roof terrace of the high-rise building, a sequence of public and semi-public spaces is created, to which co-working spaces and shared offices are attached. This joint connects the cultural forum, terraces on the base, and viewing platforms in the tower to form a continuous, experiential urban space and becomes the spatial and programmatic backbone of the design. The “vertical passage” structures the large building mass of the office tower, giving it a vertical rhythm and an elegant, lively presence in the cityscape.

The urban planning approach follows the parameters defined in the competition brief, critically reviews them, and expands them in terms of their spatial and functional dimensions. The starting point is the division of the large-volume building mass by a vertical joint that structures the office tower and gives it a clear, elegant silhouette. This joint connects the base, intermediate zones, and roof terrace to form a vertical sequence of public and semi-public spaces—from the Gallus Park to the top of the tower. Along the joint, exit options, balconies, and terraces significantly enhance the offices and workplaces. 

 

They create high-quality outdoor spaces as an attractive alternative to working from home and promote quality of stay, exchange, and relaxation in everyday working life – a significant contribution to the attractiveness of the contemporary working world – a significant contribution to the appeal of the contemporary working world. The design responds to the scale and typology of the surrounding historic buildings along Neckarstraße and Gallusanlage. Deliberate breaks in the base, similar to those found in the historic buildings along Neckarstraße, give rhythm to the volume and create a distinctive entrance to the hotel. 

The base is conceived as an independent building block within the ensemble and, through active ground floor zones and transparent facades, enters into a direct dialogue with the public space – in line with the principles of “Eyes on the Street” and the activation of urban ground floor zones.
 

 

 

 

 

 

 

Competition
11/2025


 

Project manager
Martin Josst

Project team
Daniela Hensler, Prima Mathawabhan, Ernesto Mulch, Stanislav Subbotin, Thomas Peter-Hindelang, Pascal Marcel Golda

Visualization
Toni Nachev

Model
SCALA MATTA
Modellbau Studio Vienna

CONSULTANTS
Structural engineering
Bollinger+Grohmann
Vienna

Facade planning
Bollinger+Grohmann
Frankfurt

Energy design
Energy Design Cody Consulting GmbH

HVACR/ Electrics
bwk engineers
Belgrade

Glass-clad skyscrapers dominate a modern cityscape, towering over a tree-filled park and busy streets.
Side-by-side city-tower diagrams: left Pulse tower with blue core among grey buildings; right Structure Volume Tower with black core and red dashed lines.
Two urban diagrams: left 'Green Lungs' shows a tall black skyscraper with green terraces; right 'City Terraces' shows a black tower with amber terraces.
Two schematic city-base diagrams with a central skyscraper, surrounding blocks, and base-extents lines in an urban model.

The design responds to the scale and typology of the surrounding historic buildings along Neckarstraße and Gallusanlage.

Under-construction residential high-rise between glass skyscrapers on a city plaza; people walk, cycle, and chat.
Ground-floor plan of a building complex with lobby, restaurant, library, kitchen, storage, and surrounding landscaping.

floor plan level 00

Architectural floor plan of a mixed-use building: hotel rooms on the left, central tree-filled courtyard, coworking and lobby on the right.

floor plan level 01

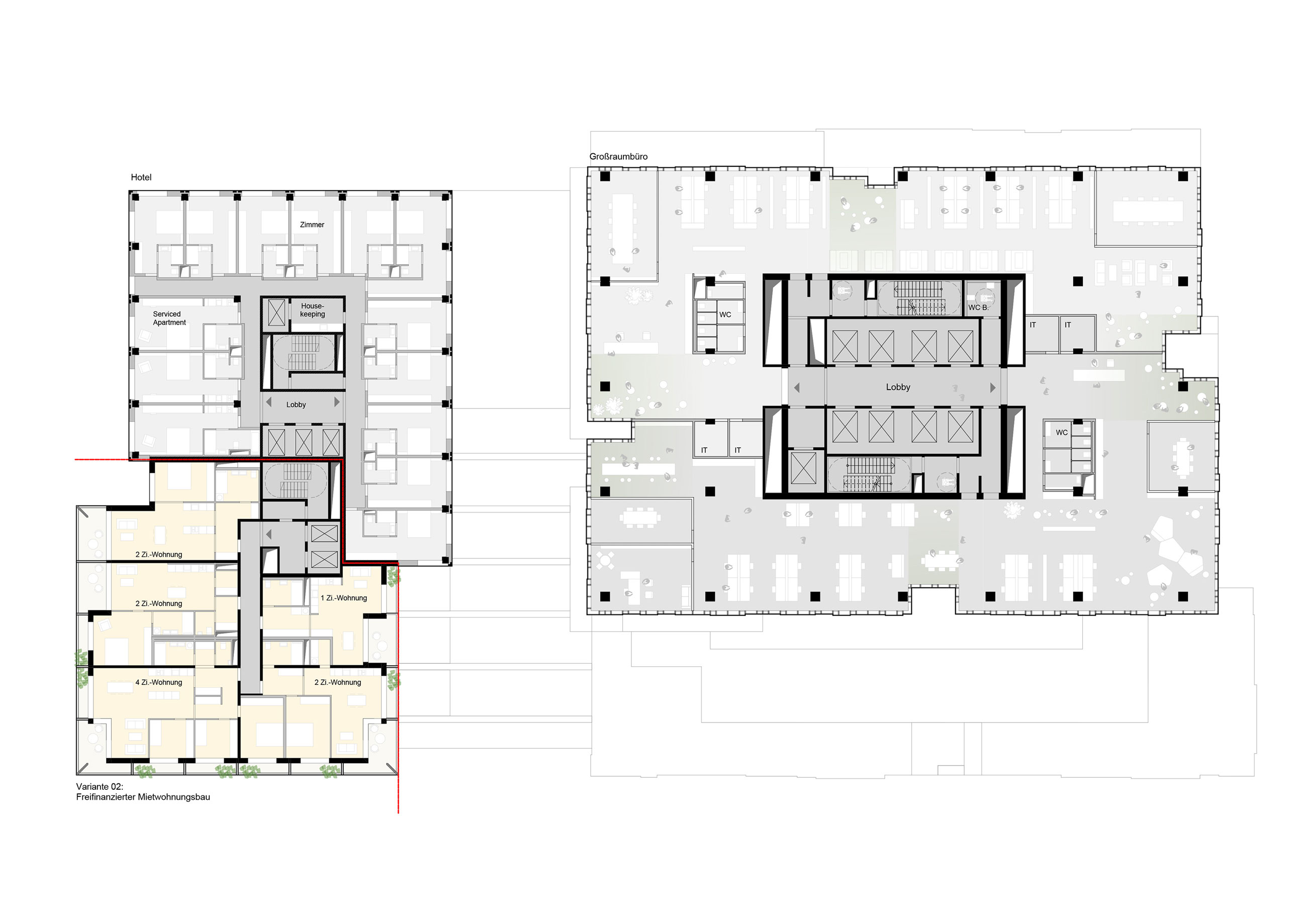
Architectural floor plan of a two-wing complex: left residential block with apartments around a central core; right open office block with a lobby.

floor plan level 03

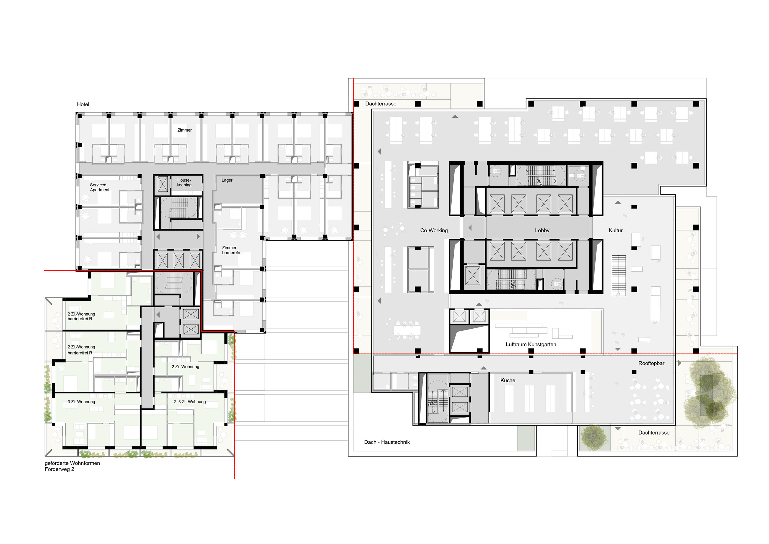
Architectural floor plan of a mixed-use complex: left hotel wing with rooms; right coworking area with lobby, kitchen, and roof terrace.

floor plan level 05

Tall dark-bronze humanoid sculpture in a modern glass atrium lobby, stepping forward as guests mingle around a multi-level reception area.

The ensemble follows the concept of real divisibility: the real divisible combination of residential and hotel tower, office tower, and base form clearly distinguishable building blocks that are functionally and structurally separate but spatially interlinked. This clear structure supports long-term flexibility and adaptability of the units.
The layout is based on the sun exposure and lighting parameters of the site. The residential tower is positioned at the southwestern tip of the design, ensuring optimal sun exposure for the apartments. The hotel tower, which has the same volume but is clearly distinguishable, is compact and efficiently situated, with office and co-working spaces located on the upper floors of the office tower. The base will house the cultural forum, hotel, restaurants, and conference areas, while a sky bar on the top floor of the office tower completes the vertical sequence of public and semi-public spaces.

A key aspect of the design is the optimization of the spacing between buildings and the associated shading of neighboring properties. Targeted recesses and stepped sections in the upper floors of the residential tower, as well as the optimized positioning of the office tower, not only preserve the sightlines within the urban fabric, but also improve the lighting conditions on the adjacent properties. This creates a balanced relationship between density, scale, and urban planning considerations.
The basic urban planning concept of a vertical joint creates a spatially and programmatically coherent structure that combines openness, flexibility, and sustainability. The design thus formulates a forward-looking urban building block ensemble that adds a lively, permeable, and publicly accessible dimension to the dense high-rise structure of Frankfurt‘s city center.

Elevation drawing of a glass-clad high-rise tower in a city streetscape, with trees at the base and surrounding low-rise buildings.

elevation view from gallusanlage

Elevation of a mixed-use high-rise complex: two slender glass towers, a grid-window mid-rise, and a tall right-hand tower; street with trees.

elevation north east 

Elevation of two glass high-rise towers with a timber-clad mid-rise and tree-lined street level.

elevation south west

Elevation of a glass-clad skyscraper with a stepped podium of terraced green balconies in an urban cityscape.

elevation east west

Isometric illustration of a tall glass skyscraper with a cutaway revealing interior floors, blue accents, set in a landscaped urban plaza with pedestrians.

green lungs/ terrace ensamble

Isometric view of a pink-glass skyscraper with magenta framework rising beside a white high-rise in an urban setting.

pulse/ urban sculpture/ vertical passage

Expansion of the existing cultural space of the Gallus complex into a vertical sequence of public and semi-public communication and recreation rooms. This joint connects the cultural forum, terraces on the base, and viewing platforms in the tower to form a continuous, experiential urban space and becomes the spatial and programmatic backbone of the design.

The green space of the Gallus complex continues in a sequence of horizontal and vertical green and recreational areas from the base terraces to the communal roof areas.
The base is designed as an independent component of the ensemble and enters into direct dialogue with the public space of Neckarstraße via active ground floor areas and transparent facades.
The base is designed as an independent component of the ensemble and, through active ground floor zones and transparent facades, enters into direct dialogue with the public space of Neckarstraße. This activates these urban ground floor zones in line with the “Eyes on the Street” principle.

Glass-clad skyscraper with stacked terraces; people gather at the ground-level entrance amid a tree-lined plaza.
Glass-clad high-rise seen from above; sunlight glints off facade, with an urban plaza and trees at the base.
Looking up at two glass-clad skyscrapers rising toward the sky, converging in an urban canyon under pink-tinted clouds.
White architectural scale model of a modern high-rise complex, featuring a tall central tower and a curved-front building on a display base.

Model
SCALA MATTA
Modellbau Studio Vienna

White architectural scale model of a city block with tall modern buildings, trees, and landscaping on a display base.
Low-angle view of a glass-clad skyscraper with reflective panels, reaching toward a pale pink sky.