Rows of concrete balconies jut from a modern apartment building, creating a geometric, repetitive facade.
Polgarstrasse
Austria
  • Residential
  • Built

The urban ensemble is composed of two building sites and a transom which extends along Polgarstraße as a spatial structural edge. The linearity and the dimensions of the building complex react coherently to the scale of the surrounding buildings, whereby the design of the new constructions distinguishes itself in its three-dimensional outer formulation. The scattered appearance of the façade follows a pattern that produces a playful effect from the manifold apartment types. This results in a limited number of façade elements which allows for an economic construction whilst utilising prefabricated components. The open spatial predisposition foreseen by the design realises the interplay between urbanity and green spaces. 

An additional integrative correlation between the constructed areas is achieved by the positioning of the central residential unit in the longhouse which includes a café, a common room and the facility centre. The open positioning of the houses mitigates daylight and fresh air efficiently. Views from passersby into the apartments are avoided through the strategic positioning of the buildings. The residential complex is pervaded by open spaces that interweave the frontal garden and the square in form of a hybrid “parksquare” which acts as an integrated dwelling and communication area. Public functions and passages at ground level secure the spatial connection to the adjacent surroundings.

Competition
04/2011 [1st prize]

Start of planning
2011

Completion
2014

Floor area
19,436 m²

Gross floor area
25,404 m²

Site area
13.930 m²

Built-up area
4,848 m²

Height
17.74 m / 21.06 m

241 Apartments
16,067 m²

1 Café
126 m²

1 SOS-Children group
258 m²

1 Day-care-centre
1044 m²

Cooperation partners
GANAHL IFSITS
architekten

Project managers
Gerhard Gölles
Thomas Theilig

Project team
Eva Schrade,
Waldemar Wilwer

CONSULTANTS
Landscape Architecture
Rajek barosch
landschaftsarchitektur,
Vienna

Client / Awarding body
Heimbau Gemeinnützige
Bau-, Wohnungs- und
Siedlungsgenossenschaft
reg. Gen.m.b.H.

EBG Gemeinnützige Einund
Mehrfamilienhäuser
Baugenossenschaft reg.
Gen.m.b.H.

Photographer
Hertha Hurnaus

Modern white apartment buildings enclose a spacious courtyard with a paved plaza, balconies, and small trees.
Architectural site plan of multiple rectangular buildings around central courtyards with walkways and landscaped green spaces.

site plan

Long modern apartment building facade with numerous windows and a row of trees along the front.

elevation West

Long multi-story apartment building with numerous balconies and windows along a street.

elevation East

Long, low-rise modern building with stacked horizontal slabs and glass facade along a street.

longitudinal section

Architectural cross-section of a modern multi-story building complex with underground levels and trees along a street.

section a-a

Modern white apartment building with stacked concrete balconies along an open plaza; ground-floor seating outside.
White modern apartment building with rectangular windows along a tree-lined walkway; bare trees cast long shadows on grass and sidewalk.
Modern white apartment building with protruding concrete balconies along a grassy lawn and chain-link fence, viewed from the side.
Angular white staircase dominates a bright, minimalistic interior hallway in a modern building; gray tiled floor, white walls, and distant corridor.
Bright white modern building interior with an open atrium, upper-level balconies, and a large diagonal staircase.
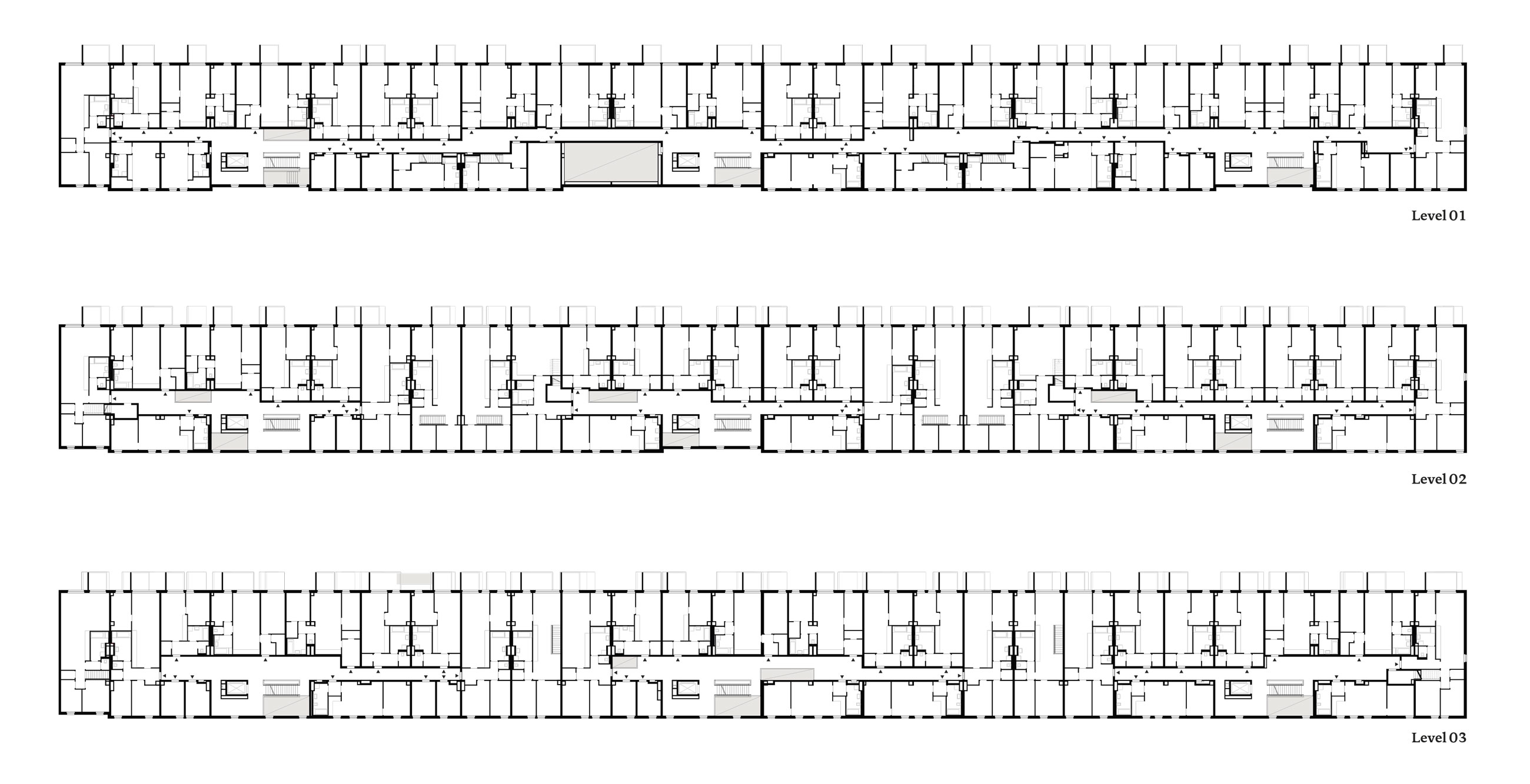
Floor plan of a multi-story building with long corridors and many rooms across Level 01, Level 02, Level 03.

plans